fire baffle
FLAME OR HEAT BARRIER
home
rain deck
rack deck
fire baffle
cover plates
mezzanine deck
shelving deck
crossbar supports
downloads
contact us
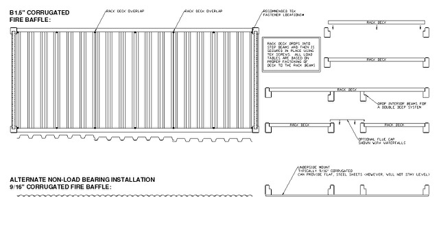
Click the installation detail below to enhance image:
home
rain deck
rack deck
fire baffle
cover plates
mezzanine deck
shelving deck
crossbar supports
downloads
contact us